



Okucia Siegenia Titan AF
Opcjonalnie kryte zawiasy
Dedykowane klamki Schüco


Ciepła ramka Multitech




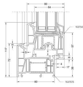
Rehau Synego
Zrównoważone budownictwo – bez oszczędzania na komforcie
Montaż okien SYNEGO przynosi od razu
podwójną korzyść – niższe koszty ogrzewania
oraz dodatkowo wkład w ochronę środowiska,
poprzez zakup produktu, który powstał z
zachowaniem zasad zrównoważonego rozwoju.
ilość komór 7 (rama) / 6 (skrzydło)
80 mm głębokości zabudowy
wzmocnienie zamknięte w ramie
szklenie pakietami do szerokości 48 mm
okucia Siegenia Titan AF
ościeżnica z dodatkową uszczelką środkową MD
4 zaczepy antywyważeniowe w skrzydle RU
klamki z funkcją Secustik: HOPPE Secustik / HOPPE Secuforte / HOPPE Toulon /REHAU Linea
okucie tradycyjne (widoczna strona zawiasowa) / okucie chowane (ukryta strona zawiasowa) (opcjonalnie




RAU-FIPRO to opracowane przez REHAU w 2008 roku tworzywo, które zrewolucjonizowało rynek okien. Wtedy po raz pierwszy do ich produkcji wykorzystano kompozyt wzmacniany włóknem szklanym – znany do tej pory przede wszystkim ze sportów wyścigowych lub branży lotniczej. W wyniku połączenia najlepszych właściwości tworzyw sztucznych oraz włókien szklanych, powstał nowoczesny materiał okienny – RAU-FIPRO. Dzięki temu profile GENEO są do 40 % lżejsze od systemów konkurencyjnych, co ułatwia ich obróbkę i montaż.
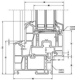
ilość komór 6
70 mm głębokości zabudowy
szklenie pakietami do szerokości 36 mm
okucia Siegenia Titan AF
ościeżnica z 2 uszczelkami
4 zaczepy antywyważeniowe w skrzydle RU
klamki z funkcją Secustik: HOPPE Secustik / HOPPE Secuforte / HOPPE Toulon /REHAU Linea
okucie tradycyjne (widoczna strona zawiasowa) / okucie chowane (ukryta strona zawiasowa) (opcjonalnie)


Euro-Design 70


Chcesz rozsądnie gospodarować budżetem na okna? Okna Euro-Design 70 to doskonałe rozwiązanie dla każdego. Dzięki szczególnie wąskiej konstrukcji profili, pozostaje więcej miejsca na szybę, a to zapewnia więcej światła w pomieszczeniach. Światło słoneczne nie tylko przyczynia się do utrzymania dobrego stanu zdrowia, lecz może również poprawić nasz nastrój.
ilość komór 5
70 mm głębokości zabudowy
szklenie pakietami do szerokości 36 mm
okucia Siegenia Titan AF
ościeżnica z 2 uszczelkami
4 zaczepy antywyważeniowe w skrzydle RU
klamki z funkcją Secustik: HOPPE Secustik / HOPPE Secuforte / HOPPE Toulon /REHAU Linea
okucie tradycyjne (widoczna strona zawiasowa) / okucie chowane (ukryta strona zawiasowa) (opcjonalnie)
Rehau Hybrid X




Okna PCV Stalowa Wola


Drzwi przesuwne SLIDE dają niespotykaną swobodę przy projektowaniu przestrzeni mieszkalnej. Jest to możliwe, dzięki skrzydłom, które otwierają się równolegle do ściany i nie "wchodzą" do środka pomieszczenia, jak tradycyjne drzwi balkonowe. Dzięki temu możemy zaoferować Ci konstrukcję o wymiarach do 4 m szerokości i 2,6 m wysokości. W drzwiach SLIDE skrzydło przesuwne dociskane jest równomiernie do ramy, wraz z umieszczoną na całym obwodzie uszczelką. Takie rozwiązanie zapewnia wysoki poziom szczelności, co docenisz w przypadku silnych opadów.


Rehau SYNEGO HS
Drzwi przesuwne SYNEGO SLIDE


Dzięki maksymalnej szerokości drzwi tarasowych do 10 m oraz wysokości do 2,70 m otwierają się przed Tobą nowe możliwości aranżacji. Drzwi podnośno-przesuwne SYNEGO pozwalają na stworzenie swobodnego przejścia o szerokości nawet do 5 m, łącząc płynnie dom, taras i ogród w jedną całość. Zaprojektuj swój dom jako otwarty i nowoczesny, z dużą ilością światła wpadającego do środka. Dzięki drzwiom podnośno-przesuwnym SYNEGO nic nie stanie na przeszkodzie w realizacji Twoich marzeń. Wprowadź naturę do swojego domu i delektuj się poczuciem wolności, dzięki wyjątkowemu połączeniu z otoczeniem.


Okna Artview Stalowa Wola to gwarancja jakości

Adres
Artview Okna
ul. Przemysłowa 11
37-450 Stalowa wola
Salon okien czynny
Poniedziałek-piątek :
9:00 - 17:00
sobota :
8:00 - 13:00
© Artwiew okna 2025. All rights reserved.
Skontaktuj się z nami, aby uzyskać więcej informacji.






